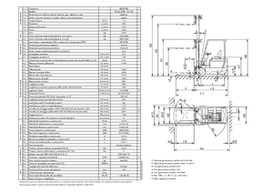
Scheda tecnica per Montini Bingo Zinc 163 GA

modello 2011-2016 Europe IT

La scheda tecnica (PDF) verrà inviata alla tua mail dopo averla insierita qui:

  • Scheda tecnica originale del produttore
  • Maggiori informazioni
  • Specifica dettagliata

*Condizioni generali

The privacy policy of the company LECTURA GmbH applies, which also contains further information about possibilities for correction, deletion and blocking of my data.

Carrelli elevatori frontali elettrici Montini Bingo Zinc 163 GA



mostrare specifiaczione dettagliata